
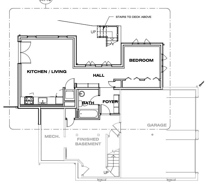
At DevelopX, we help homeowners unlock the potential of their property with custom-built Accessory Dwelling Units (ADUs) and in-law additions. Whether you’re creating private space for family or generating rental income, our team brings the same craftsmanship and attention to detail that define every DevelopX project.
ADUs have quickly become a core focus of our residential work — combining our experience in home additions, code compliance, and efficient project delivery.
Why Homeowners Are Choosing ADUs
Ready to explore an ADU? Our team can help you design, permit, and build a solution that fits your property and budget. Contact us today!

Cortez Family - Amesbury, MA
We use cookies to analyze website traffic and optimize your website experience. By accepting our use of cookies, your data will be aggregated with all other user data.